新聞動態
301
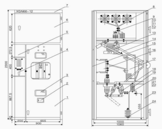
高壓開關柜結構與技術??
[2022-09-22]
高壓開關柜的主要結構是由柜體、電路接地機械開關、綜合保護機構、高壓真空斷路器、彈簧儲能操作機構以及小車等組合而成。技術要求需具備足夠的抗沖擊強度。...
[閱讀全文]
302
電纜分支箱作用與操作??
[2022-09-22]
電纜分支箱其作用當配電網或者是電纜中容量很小的單獨負荷分布較為密集的時候,對線路當中的電纜每個分支進行相互連接,配合電網電纜系統中的線路分支。...
[閱讀全文]
303
環網柜比中置柜更有優勢??
[2022-09-22]
環網柜主要作用就是為了能夠有效的提高供電持續性與穩定性,能讓用戶們可以從兩個方面進行選擇電源的接入,中置柜聯鎖機構在內部結構設計上來講十分復雜。...
[閱讀全文]
304
環網柜特點及應用??
[2022-09-22]
環網柜就是指用于在配電網當中形成一個環形供電模式的開關柜,主要的結構就是由各種電器保護開關、二次操作機構、高壓母線以及斷路器等部件組成。...
[閱讀全文]
305
環網柜和中置柜比較??
[2022-09-21]
文章主要介紹了環網柜,講述了環網柜和中置柜之間的比較,環網柜是現場被使用的非常廣泛的產品。...
[閱讀全文]
- 共 3732頁18656條





