BDZ-1B型低周率繼電器的工作原理及開孔尺寸-上海上繼科技有限公司
發表時間:2019-04-19 08:40 瀏覽次數:1319 〖返回〗BDZ-1B型低周率繼電器概述:
BDZ-1B繼電器在低周減裁線路中,作為反應頻率降低的靈敏元件。
BDZ-1B型低周率繼電器結構特點:
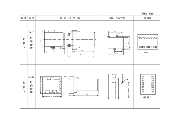
BDZ-1B為品體管式, LC串聯諧振檢測原理。殼體結構采用JK2(凸出式后接線)、 JKF2Q(凸出式前接線)標準組件.訂貨時須指明。
BDZ-1B型低周率繼電器主要技術數據:
BDZ-1B低頻率繼電器主要技術數據見表。

BDZ-1B型低周率繼電器外形及開孔尺寸:

上海上繼科技有限公司(專注電力保護繼電器生產廠家)銷售熱線:021-57233089 QQ:1932551438
{以上內容僅供參考,上海上繼科技有限公司有最終解釋權}
更多繼電器精彩文章——DY-4負序繼電器的接線圖





