DZB-554繼電器的原理及安裝尺寸-上海上繼科技有限公司
發表時間:2019-06-15 17:07 瀏覽次數:912 〖返回〗
一、DZB-554繼電器的用途
該繼電器用于電力系統二次回路及工業自動化控制回路上,作為轉換控制電路或擴大被控制電路范圍及船舶電站之用。
二、DZB-554繼電器的原理
該繼電器為電磁拍合式結構,并帶有保持線圈,由電磁系統,接觸系統二部分組成 ,當線圈通電時.通過鐵芯產生磁場吸合吸片, 由吸片帶動簧片,使觸點回路轉換,觸點采用雙觸點接觸 ,有接觸電阻小、接觸可靠性強、斷開負荷容量大等優點。繼電器外殼采用引進Combiflex凸出式模數化插入結構。
三、DZB-554繼電器的特點
1能提供7付動合、動斷及轉換觸點,結構緊法。
2通過罩殼上的小孔拔動銜鐵,可以試驗觸點動作情況。
3繼電器可以電壓起動電流自保(最多有三個電流繞組)。
4線圈激勵為直流。
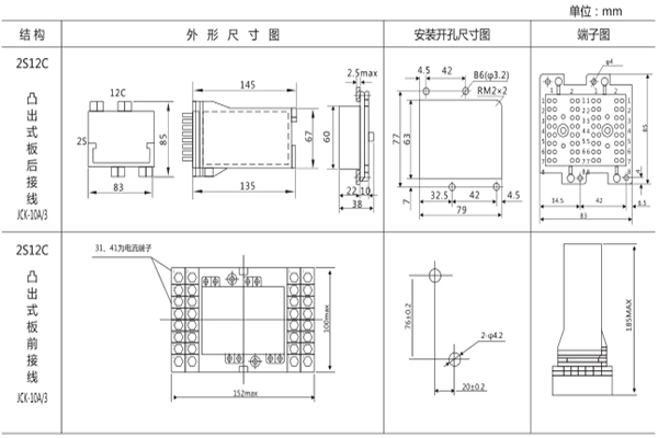
四、DZB-554繼電器的安裝尺寸
如下圖所示

上海上繼科技有限公司(專注電力保護繼電器生產廠家)銷售熱線:021-57233089 QQ:1932551438
{以上內容僅供參考,上海上繼科技有限公司有最終解釋權}
更多繼電器精彩文章——DZZ-19組合中間繼電器
- 上一篇:DZB-553繼電器的安裝尺寸及特點
- 下一篇:DZB-555繼電器的特點及參數





