JZJ-213中間繼電器主要性能及用途-上海上繼科技有限公司
發表時間:2019-07-26 14:29 瀏覽次數:1008 〖返回〗
一、JZJ-213靜態中間繼電器
型號含義
靜態中間繼電器有JZJ(HZJ)、JZY(HZY)、JZL(HZL)、 JZB (HZB)、JZS(HZS)等型號
其中,JZ和HZ表示靜態中間繼電器。第三位字母:J表示交流工作電壓,Y表示直流工作電壓,L表示電流工作,B表示帶保持,S表示帶延時)
隨著繼電器所用場合的不斷增加,繼電器的工藝也在不斷改進,靜態中間繼電器也逐漸朝著輕巧,安裝方便的方向發展。RZY、RZYJ、RZF、RZE系列歐規標準的導軌式靜態中間繼電器,殼體體積小,重量只有200-350g、可無限拼裝,觸點易于擴展,可直接安裝在開關柜35mm導軌條上,從而提高了安裝密度,方便接線。
二、JZJ-213靜態中間繼電器
內部接線圖及外引接線圖

三、JZJ-213靜態中間繼電器主要性能
常規100V和220V的電磁型中間繼電器所用導線很細,匝數也多,造成容易斷線,可靠性低,動作時間和返回時間本系列中l間繼電器采用靜態電子控制回路控制多個密封進口中間同時導通或斷開。 具有以下性能和特點
1、采用高性能密封繼電器、防潮、防塵、不斷線、可靠性高。
2、動作電壓準確,返回系數高,無抖動,功耗低,多個特點同時動作或返回(可控性100%) 。
3、繼電器動作后有燈光指示、有電源指示。
4、繼電器的電氣壽命和機械壽命長。
5、絕緣耐壓水平高。觸點容量大,觸點接觸電阻小。
6、抗干流特性好,可使用于強干擾或電源電壓質量很差的場所
四、JZJ-213靜態中間繼電器
特點
1.靜態中間繼電器采用線圈電壓較低的多個優質密封小型繼電器組合而成,防潮、防塵、不斷線,可靠性高,克服了電磁型中間繼電器導線過細易斷線的缺點。
2.功耗小,溫升低,不需外附大功率電阻,可任意安裝及接線方便。
3.繼電器觸點容量大,工作壽命長。
4.繼電器動作后有發光管指示,便于現場觀察。
5.延時只需用面板上的撥碼開關整定,延時精度高,延時范圍可在0.02-5.00S任意整定。
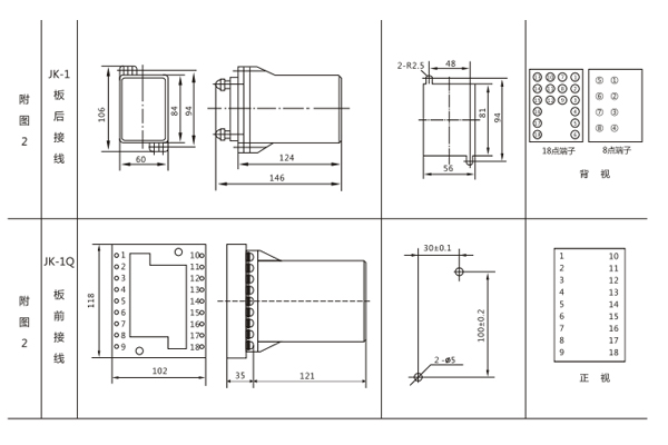
五、JZJ-213靜態中間繼電器
外形及開孔尺寸

六、JZJ-213靜態中間繼電器
用途
可調延時中間繼電器用于直流或交流操作的各種保護和自動控制線路中,作為輔助繼電器,以增加觸點數量和觸點容量。可根據需要自由調節通電延時或斷電延時的時間。
上海上繼科技有限公司(專注中間繼電器生產廠家)銷售熱線:021-57233089 QQ:1932551438
(以上內容僅供參考,上海上繼科技有限公司有最終解釋權}
更多繼電器精彩文章→JZY-32中間繼電器特點及接線圖





