JSS-13時間繼電器技術參數及開孔尺寸-上海上繼科技有限公司
發表時間:2019-09-26 13:05 瀏覽次數:616 〖返回〗
一、JSS-13時間繼電器用途
JSS-13時間繼電器用于電力系統繼電保護、控制回路或工業控制的直流、交流電路中作為延時控制元件之用。尤其適用于時間測量精度要求高,配合時間級差小的場合。
二、JSS-13時間繼電器使用方法
1.動作時間整定同由獨立的兩組三位8421碼拔盤開關和一位DIP五檔小開關相互配合而成, 其整定公式為:t= kT(s)(其中k為 DIP五檔小開關的整定系數, T為拔盤開關的整定數字)。例如:k為
0.01,T為357 ,則整定時間為0.01x357=3.57(s)。
2. 由于本產品延時精確,最小延時整定值為20ms,因而希望控制本產品輸入激勵量的觸點無抖動,如使用于輸入激勵量有抖動的場合, 用戶須提出特殊訂貨要求。
三、JSS-13時間繼電器主要技術參數
1 動作電壓
a)輸入為直流時,繼電器的動作電壓為(60%-70%)額定值,小于50%額定值可靠不動作
b)輸入為交流時,繼電器的動作電壓為(60%-80%)額定值,小于50%額定值可靠不動作。
2.返回電壓
a)輸入為直流時,繼電器的返回電壓應不小于10%額定值;
b)輸入為交流時,繼電器的返回電壓應不小于15%額定值;
3 延時一致性在基準條件下:
a)輸入為直流時, 一致性不大于(0.1%整定值+3ms);
b)輸入為交流時, 一致性不大于(0.1%整定值+10ms)。
4.延時整定誤差在基準條件下:
a)輸入為直流時,整定誤差不大于(0.1%整定值+3ms);
b)輸入為交流時,整定誤差不大于(0.1%整定值+10ms)。
5.返回時間誤差
在基準條件下:
a)輸入為直流時,返回時間不大于20ms;
b)輸入為交流時,返回時間不大于25ms。
6.功耗在額定電壓下,繼電器功率消耗不大于10W。
7.觸點性能
在電壓不超過250V,電流不超過1A,時間常數為5ms±0.75ms直流電路中, 斷開容量為30W;在電壓不超過250V,電流不超過5A,功率因數為cosφ=0.4±0.1的交流電路中, 斷開容量為250VA。繼電器的電壽命為104次。
8.工作條件
a)使用地點不允許有爆炸危險的介質,周圍介質中不含有腐蝕金屬和破壞絕緣的氣體及導電介質,不允許充滿水蒸汽和有較嚴重的霉菌存在;
b)使用地點不允許有較強的振動和沖擊;
c)使用地點應具有防御雨、雪、風、沙的設施;
d)使用地點不允許超過1.5mT的外磁感應強度。
9.介質強度
繼電器各導電路對外露的非帶電金屬部分及外殼之間,應能承受2kV(有效值)輸入電路配點之間應能承受1kV(有效值) , 50Hz的交流試驗電壓,歷時1min試驗 ,而無絕緣擊穿及為絡現象。
10.抗干流性能
繼電器應能承受頻率為1MHz衰減震蕩波,第一個半波電壓幅值共模為2.5kV,差模為1kV的試驗電壓,繼電器不應誤動或拒動。
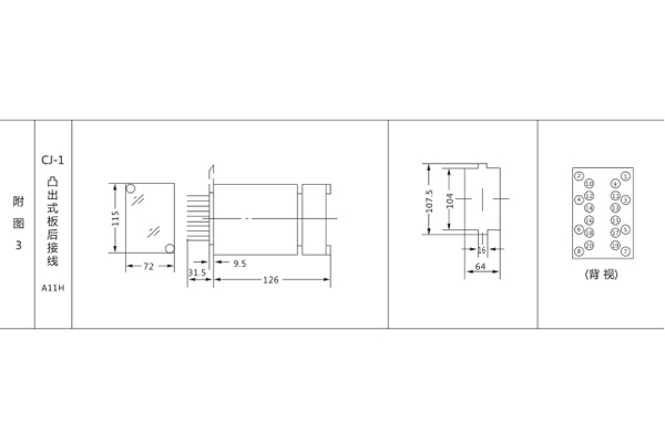
四、JSS-13時間繼電器背后接線圖及外引接線圖(背視圖)

五、JSS-13時間繼電器外形尺寸及安裝開孔尺寸


公司介紹:上海上繼科技有限公司是一家專業從事電力系統繼電保護及智能電網電力自動化產品的研發、設計、生產、銷售和服務為一體的高科技公司。擁有資深繼電保護專家團隊和國內**的檢測儀器及校驗設備。同時還引用國內外先進技術,來進行技術創新。本公司的產品廣泛用于電力、工礦、鐵路、建筑等國家重大工程輸配變電系統上,產品遠銷東南亞及中東地區。產品通過國家繼電保護及自動化設備質量監督檢驗中心檢測,獲得ISO9001國際質量體系認證。“科技創新,誠信務實”是公司的經營理念,本公司以高超的技術支持和對用戶高度負責的售后服務贏得了輸配電成套企業的信賴,且樹立了良好的信譽
上海上繼科技有限公司(專注電力保護繼電器生產廠家)銷售熱線:021-57233089 QQ:1932551438
{以上內容僅供參考,上海上繼科技有限公司有最終解釋權}
更多繼電器精彩文章——JY-B/4電壓繼電器使用方法及技術要求





